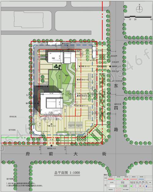
山东金辰建设集团有限公司建金大厦项目位于府前大街北、东四路西,用地性质为商务办公用地,总用地面积21691.52平方米。此次对建金大厦项目建设工程规划许可证附图补办及调整批后公布。
此次建设单位申报工程证附图补办及调整,附图已在东营日报第7341期登报挂失;建设单位对单体平面功能布局进行调整。总建筑面积89280平方米,其中A楼总建筑面积61460平方米(地上48672平方米,地下12788平方米),B楼总建筑面积27820平方米(地上22668平方米,地下5152平方米),容积率3.29。
根据住房城乡建设部《关于城乡规划公开公示的规定》的通知,现予以批后公布。

建金大厦项目建设工程项目规划图
金辰建金大厦周边配套及街景:

【金辰建金大厦】紧挨金融港

【金辰建金大厦】周边配套之市政府大楼
金辰建金大厦由山东金辰建设集团鼎力钜献,项目位于东营经济技术开发区CBD核心位置,目前一期即将完工。

【金辰建金大厦】周边绿化街景

【金辰建金大厦】周边街景

【金辰建金大厦】周边街景

【金辰建金大厦】位于东四路与府前大街交汇处 交通便利

【金辰建金大厦】位于东四路与府前大街交汇处

【金辰建金大厦】位于东四路与府前大街交汇处
金辰建金大厦地理位置优越,府前大街、东四路两大主干道环绕本项目,将为金辰建金大厦入住企业提供绝佳的交通条件。同时,东营经济技术开发区将为广大入驻企业提供人性化的入驻优惠条件,必将为广大企业的成长、发展带来新的机遇。
金辰建金大厦坐拥东营首屈一指的风水宝地,将为广大入住企业提供最佳的发展平台。

【金辰建金大厦】鸟瞰图

东营府前街和东四路交叉口旋塔区整体鸟瞰图——【金辰建金大厦】
金辰建金大厦方案总体设计顺应上位规划的总体空间布局,布置南北两栋高层建筑,南楼地上25层,高度121.2米,北楼地上20层,高度88.9米。南楼为主楼,塔式结构,平面方正;北楼为次楼,板式结构。两楼以裙房相连,布置大厅与金融办公部分。

【金辰建金大厦】东南向透视图
金辰建金大厦总体布局稳重大气,城市界面完整统一,有利于提升该区域的城市形象。

【金辰建金大厦】西北向人视效果图
金辰建金大厦位于东城经济技术开发区内府前大街CBD核心区域,毗邻东营市政府,交通便捷。东侧为悦来湖城市公园,风景秀丽。是拉动整个开发区快速发展、集中展示东营市风貌的中央商务金融大厦。

【金辰建金大厦】沿东四路方向人视效果图
金辰建金大厦在建筑造型上,取“高山流水”之意,展示东营黄河文化,挺拔的建筑寓意高山,挑出的幕墙寓意流水,两楼合璧,交融共生,体现出山水城市的整体理念。其主要功能为金融行业服务,满足银行保险等金融服务业的营业及办公的需求,提高开发区金融界的品质。

【金辰建金大厦】总平面图
更多详情敬请垂询由0546房产网(东营房产网)提供的项目热销热线:18678691397
项目地址:东营市经济技术开发区东四路与府前大街交汇处
金辰建金大厦竭诚欢迎您的莅临!
附:此文章为0546房产网(东营房产网)独家纯原创,任何单位和个人未经允许,不得摘录和复制,违者将追究其相关法律责任,已经本网授权使用的,应注明"来源:0546房产网,特此声明!
